Warning: get_meta_tags(https://www.nemunoki.biz/plan): failed to open stream: HTTP request failed! HTTP/1.1 403 Forbidden in /home/sunnylink/sp/sp.php on line 405
プレゼンテーション図面 イメージが伝わる!実際に施工した庭づくりのデザイン画を紹介 - お陰様で10周年 信頼と実績のガーデン・外構工事専門店 GD020 - ウッドフェンス、庭リフォーム等、ナチュラルガーデンの専門店

プレゼンテーション図面集

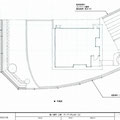
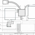
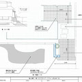
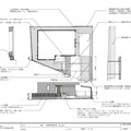
プランご提案時には、お客様に施工後のイメージが正しく伝わるよう、わかりやすい図面とイメージスケッチを準備させていただきます。

実際に打ち合わせに使用した、手描きプレゼンテーション図面の一部をご紹介いたします。



ご提案に際し、このような図面と併せ必要に応じて各種サンプルなどもご準備いたします。

通常の図面だけではわかりにくい部分も、プランナー自ら詳しくご説明させていただきます。


手書きイラストでイメージをお伝えします。ガーデン・エクステリア専門店 庭づくりねむのき

 

施工対応エリア

 

● 千葉県 

千葉市 市原市 袖ケ浦市 木更津市 君津市 富津市 南房総市 館山市 鴨川市 勝浦市 四街道市 船橋市 八千代市 習志野市 佐倉市

 

※施工対応エリア以外の地域も対応できる場合がございます。まずは一度ご相談ください。